Rif. 4VANINC
Quadrilocale ristrutturato zona semicentrale

Descrizione

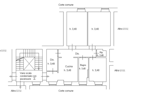
Nel cuore di Grosseto, all'interno del palazzo INCIS, testimonianza dell'architettura razionalista e signorile della prima metà del novecento, proponiamo in vendita un appartamento di circa 90 mq situato a un piano alto con ascensore. L'immobile è stato oggetto di una ristrutturazione integrale ( eccetto gli infissi che sono comunque buoni ) che ha rinnovato completamente tutti gli impianti ( inclusa la caldaia a condensazione ) preservando però con cura il sapore originario della dimora. Il fascino dell' epoca è ancora percepibile negli ampi volumi, nelle porte interne originali e nelle pavimentazioni che richiamano lo stile del passato. L'ingresso si apre su un disimpegno versatile, una vera e propria stanza jolly ideale come libreria, studio aperto o guardaroba funzionale ; per chi preferisse un layout più contemporaneo, lo spazio può essere facilmente unito alla cucina abitabile per creare un moderno open space. La zona giorno si completa con un soggiorno accogliente, mentre la zona notte offre due camere matrimoniali di generose dimensioni. Il bagno, finestrato, è stato modernizzato con una spaziosa doccia walk-in. Pratico e ben organizzato il ripostiglio interno che ospita una lavatrice. Pur non disponendo di balconi privati, l'abitazione gode di un valore aggiunto esclusivo : l'accesso al terrazzo condominiale all'ultimo piano. Si tratta di un'area vastissima, ideale per stendere i panni in totale comodità, ma soprattutto un punto di osservazione privilegiato che offre una vista panoramica a 360° su tutta Grosseto e il territorio circostante. Completa la proprietà una cantina di 22 mq situata al piano terra, dotata di finestra , perfetta come laboratorio o deposito. Una soluzione pronta da abitare, dove l'efficienza degli impianti moderni incontra l'ampiezza e lo stile delle costruzioni storiche.

Prezzo

€ 230.000

Caratteristiche

Tipologia:

Appartamento

Contratto:

Vendita

Località:

Grosseto

Posizione:

Superficie (mq):

100

Numero Vani:

4

Numero Camere:

2

Numero Bagni:

1

Cucina:

Abitabile

Riscaldamento:

Autonomo

Garage:

No

Condizionatore:

Si

Ascensore:

Si

Condizioni:

Abitabile

Cl. Energetica:

G

IPE:

175 kWh/m2

Galleria fotografica

Richiedi informazioni su questo immobile

* Nome e Cognome:

* E-mail:

Telefono:

Oggetto:

Messaggio:

Consenso al trattamento dei dati personali

1. trattamento dei dati strettamente necessario per l’adempimento delle obbligazioni assunte e/o derivanti dall’incarico / contratto o da obblighi di legge, di cui alle lettere a) e b) del punto 3 dell’Informativa (il mancato consenso non potrà permettere al Titolare di dare seguito all’esecuzione del contratto)
2. comunicazione dei dati dell’interessato a persone fisiche e/o giuridiche operanti nell’ambito di attività connesse e comunque inerenti lo svolgimento del contratto e/o dell’incarico affidato al Titolare quali:
a) altri agenti d’affari in mediazione (anche società) individuati dal Titolare al fine di collaborare per l’espletamento dell’incarico affidato dall’interessato:
b) banche e/o istituti di credito e finanziari e/o altri agenti operanti nel campo creditizio:
c) società e/o professionisti che svolgono servizi per l’espletamento di pratiche tecniche / catastali / edilizie / urbanistiche:
d) notai al fine della predisposizione di atti notarili e/o attività connesse attinenti all’incarico conferito al Titolare:
e) assicurazioni al fine della stipula di polizze attinenti l’incarico conferito al Titolare:
f) società e/o professionisti operanti nel campo delle inserzioni e delle pubblicità (sia per mezzo web e social network, sia per mezzo di pubblicazioni cartacee) al fine di pubblicizzare l’immobile oggetto di incarico conferito al Titolare, autorizzando a tal fine anche la divulgazione e pubblicazioni di fotografie inerenti l’immobile oggetto di incarico:
g) trasmissione e pubblicazione di dati personali e fotografie su social network e siti web al fine di pubblicizzare l’immobile oggetto di incarico:
h) comunicare ad altre persone fisiche e/o giuridiche e/o enti pubblici i dati conferiti per adempiere all’incarico conferito al Titolare e/o in adempimento del contratto stipulato tra l’Interessato e il Titolare:
3. trattamento dei dati per le finalità di marketing, commerciali e promozionali svolte sia attraverso mezzi automatizzati (come e-mail o telefonate senza operatore) che tradizionali (come posta cartacea), autorizzando altresì a ricevere dal Titolare promozioni di servizi e/o prodotti offerti dal Titolare:
4. trasmissione dei dati dell’Interessato a soggetti terzi per finalità di marketing, commerciali e promozionali svolte da questi ultimi soggetti sia attraverso mezzi automatizzati (come e-mail o telefonate senza operatore) che tradizionali (come posta cartacea), autorizzando altresì a ricevere da detti terzi promozioni di servizi e/o prodotti offerti da questi ultimi:
Controllo Antispam*: Qual è il numero tra 8 e 10?